Скандинавский каркасный дом
Место строительства:
г. Раменское
Площадь застройки:
101,9 м2
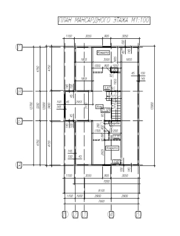
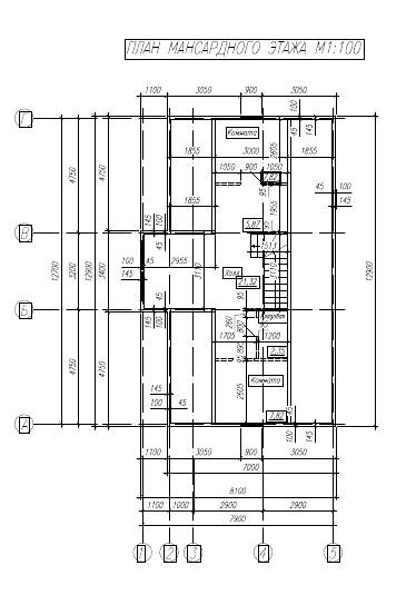
Габаритные размеры:
7,9 х 12,9 м
Этажность:
2 этажа
Кол-во комнат:
6
Кол-во сан. узлов:
2
Название проекта:
Дата строительства:
Август 2018 года
Планировочные решения
Фасады
Комплектация построенного дома
Фундамент: Монолитная ж/б плита, выполнялась Заказчиком самостоятельно
Наружная отделка: Финская фасадная доска UYV 145х21 мм. с тонкопиленной поверхностью, окрашенная на производстве
Кровельное покрытие: Профнастил (производитель GrandLine) тип покрытия Velur
Утепление: -
Цокольное перекрытие: -
Наружная стена: -
Перегородки: -
Чердачное перекрытие: -
Внутренняя отделка: Без отделки
Другие построенные дома
Отзывы наших клиентов
Отзыв от Дмитрия и Варвары
Отзыв Олега Калинина






